Petra Mojžíšová, bakalářská práce
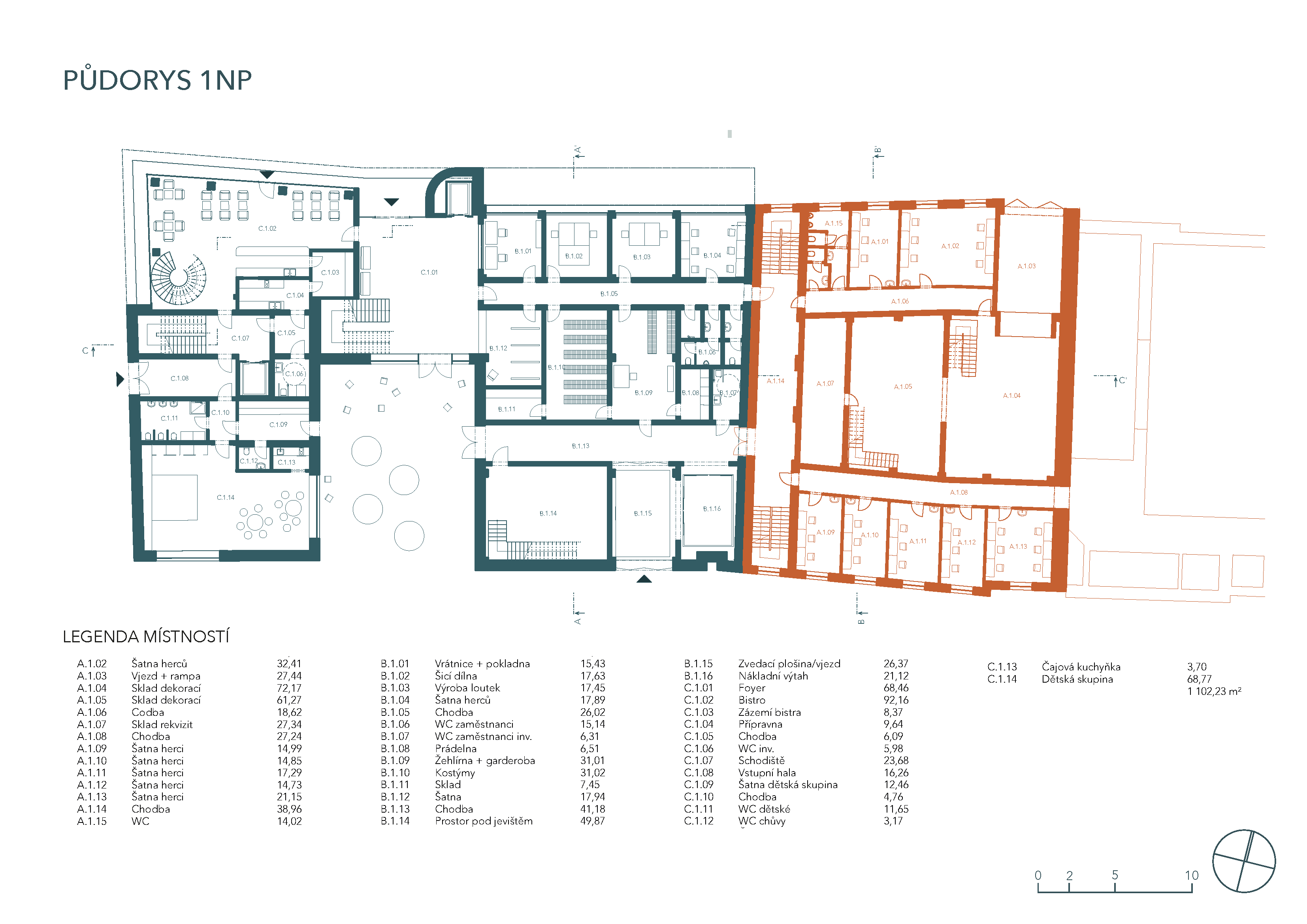
Projekt představuje architektonicko-urbanistické řešení přestavby provozní části Slezského divadla a novostavby městského domu s divadlem v západní části Horního náměstí v Opavě.
Hlavním motivem práce je propojení dvou subjektů – profesionálního dvousouborového Slezského divadla a nové budovy se sálem pro divadlo amatérských souborů a dětského centra.
Využití stávajícího veřejného prostoru je motivováno obecnou myšlenou zahušťování městské struktury a soustředění kultury v centru města. Doplnění monobloku divadla o další funkce považuji za smysluplné, ať už z hlediska udržitelnosti a adaptace, tak z hlediska komunitního.
Hlavním motivem práce je propojení dvou subjektů – profesionálního dvousouborového Slezského divadla a nové budovy se sálem pro divadlo amatérských souborů a dětského centra.
Využití stávajícího veřejného prostoru je motivováno obecnou myšlenou zahušťování městské struktury a soustředění kultury v centru města. Doplnění monobloku divadla o další funkce považuji za smysluplné, ať už z hlediska udržitelnosti a adaptace, tak z hlediska komunitního.






Dokumentace











Model

