Štvanice FUCHS re-open

Petra Mojžíšová, AT-5

Hlavní myšlenka návrhu je oživení dnes bohužel chátrající památky – budovy kavárny hokejového stadionu na Ostrově Štvanice v Praze – Holešovicích. 

Návrh pracuje jak s obnovením prostor kavárny, tak také doplněním funkce budovy o zázemí venkovního bazénu a bistra přístupného ze západní strany budovy od řeky.

Bazénový areál je dále doplněn pavilonem s občerstvením a sociálním a technickým zázemím.

Při návrhu byla nejdůležitější jednoduchost, respekt ke stávající budově a vytvoření klidné zelené oázy s koupáním uprostřed rušného velkoměsta.



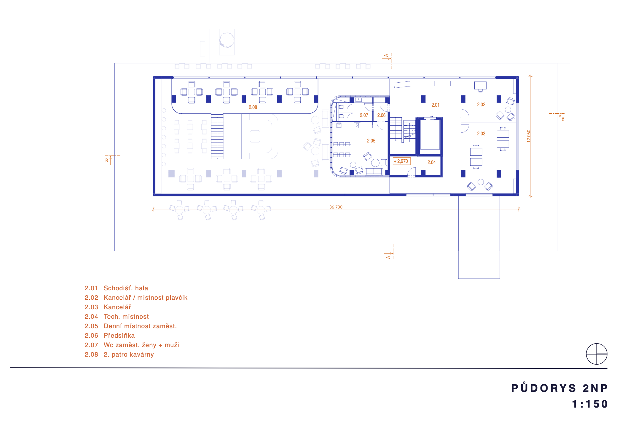
Půdorysy, řezy, pohledy


Model